OBRA NOVA REHABILITACIÓ CONCURSOS EXPOSICIONS PUBLICACIONS COOPERACIÓ
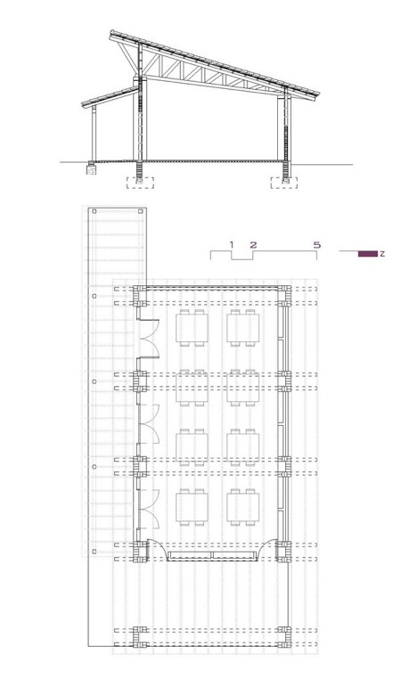
Escola pública Godofredo Trenker a San Rafael de Velasco, Bolivia
Obra pública
Promotor: Centre de cooperació per al desenvolupament CCD - UPC
Estat: Obra finalitzada
Any projecte: 2003