Universitat Pública de la Chiquitania a San Ignacio de Velasco, Bolivia

 

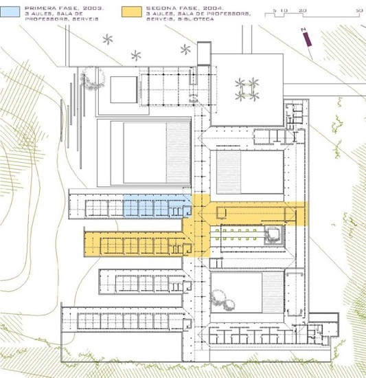
El projecte actualitza les tipologies pròpies de l'arquitectura tradicional boliviana: els grans patis, l'arquitectura en filera, i la construcció en planta baixa, amb grans teulades, d'influència missional.


Es pot apreciar un espai de patis vinculat als equipaments estables, i la zona d'aularis articulada en filera. tot es vertebra a través d'un gran eix com un carrer cobert que té inici a la gran sala d'actes. de manera transversal hi ha un vincle de visuals entre els porxos i els espais oberts del patis potenciant la relació entre tot el campus universitari.


El projecte, gràcies a l'esquema de pinta, està pensat de forma que es pugui construir de manera paulatina, a mesura que es vagin incorporant noves carreres universitàries, assegurant l'optimització de recursos i la unitat arquitectònica futura del projecte. 



Obra pública

Promotor: Centre de cooperació per al desenvolupament CCD - UPC

Estat: En construcció

Any projecte: 2001





La Universitat de la Chiquitania neix com a Projecte de Fi de Carrera de Sandra Bestraten (guanyador del II Concurs de projectes final de carrera sobre cooperació de les politècniques de tota Espanya), dins el marc d'actuacions que Universitat Sense Fronteres realitza des de l'any 2000 a Bolívia, col·laborant amb la universitat pública boliviana i el municipi de San Ignacio de Velasco.

Els objectius són potenciar l'educació, equilibrar el territori bolivià evitant l'emigració massiva a les grans ciutats i generar un motor de desenvolupament d'una regió amb moltes deficiències.

Ja estan en funcionament les carreres de Topografia, Pedagogia, Enginyeria Forestal i Agropequària.


La construcció es basa amb l'ús dels materials locals tot optimitzant la seva posada en obra i fent del projecte un veritable exemple de construcció sostenible.  murs de tova que ens aïllen de la calor, lluernaris que afavoreixen una il·luminació correcta i potencien la ventilació, plaques fotovoltaiques per la il·luminació artificial.


Durant els dos mesos d'estiu voluntaris catalans i l'entusiasme de tota una regió està fent d'aquesta universitat un somni fet realitat. l'estiu del 2003 mil famílies bolivianes van col·laborar amb un dia de treball voluntari amb la 1ª fase. el treball s'organitza a través de les escoles des d'on es va informant als pares dels alumnes el torn. durant l'estiu del 2004, la 2ª fase, també ha comptat amb més de mil famílies que han seguit donant suport amb el treball, no només del poble de san ignacio sinó de comunitats dels voltants que veuen en la universitat una esperança per als seus fills i una possibilitat de progrés de la regió.

IMPLICACIÓ DE TOTS ELS BENEFICIARIS EN LA CONSTRUCCIÓ

Implicació de tothom també a la festa d’inauguració                                                           

Compatibilitat entre cooperació i qualitat arquitectònica